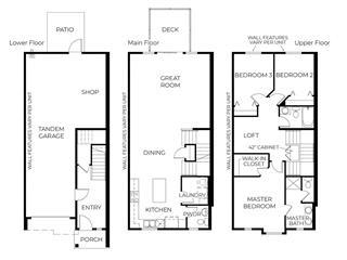
The Lynden - Design A | Interior Unit // Point 47 North
Point 47 North
Picnic Point-North Lynnwood, Lynnwood
18808 99th Ct Ne, Unit C
Arborstone
Downtown-190th-Riverfront, Bothell
24327 13th Ave. SE
Camas Ridge
Maywood-Beckstrom Hill, Bothell
18814 99th Ct Ne, Unit B
18811 99th Ct Ne, Unit C
The Lynden - Design B | Interior Unit // Point 47 North
The Lynden - Design A | End Unit // Point 47 North
24229 13th Ave. SE