




































Get additional information including price lists and floor plans.
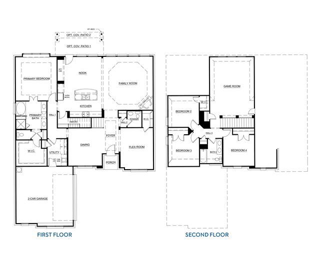
Experience luxury in this home with six unique front elevations and customizable options. A grand foyer leads to a dining room and flexible space that can convert to a study or bedroom. Enjoy an open-plan family room and kitchen with optional fireplace. The primary suite boasts a lavish ensuite bathrooms. A utility room, two-car garage, or optional three-car garage, and upstairs guest bedrooms complete the layout for comfortable living.
Stay informed with Livabl updates on new community details and available inventory.