






























































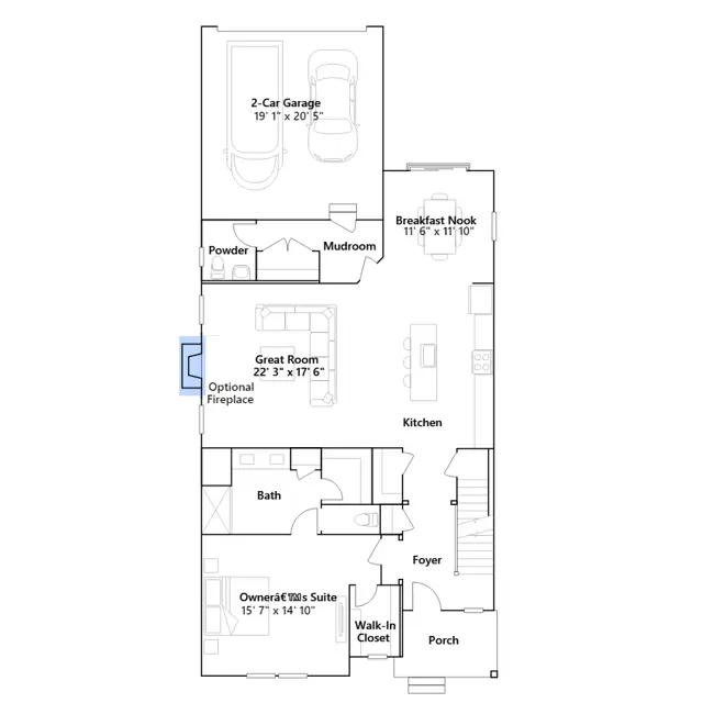
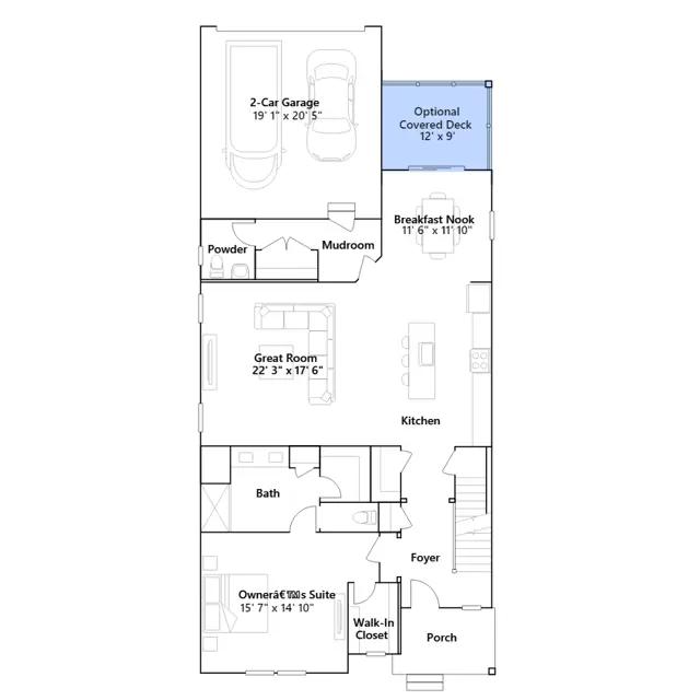
On the first level of this new two-story home is a spacious owners suite complete with an adjoining bathroom and walk-in closet. At the heart of the layout is an open-plan design shared among the kitchen, Great Room and breakfast nook, with glass sliders to extend to the backyard. Upstairs is a sprawling loft to suit a multitude of needs and two secondary bedrooms, one of which has direct access to a shared bathroom.
Stay informed with Livabl updates on new community details and available inventory.