hero-image-0
hero-image-1

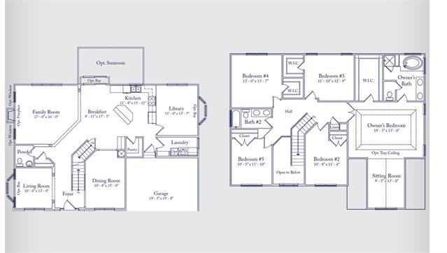
1124 Cardigan Road

By

D.R. Horton

   |   

Shannon Cove

Shannon Cove
Sold
Sold
5
2
3,009
1124 Cardigan Road details
unit-banner-image
unit-banner-image
unit-banner-image
1124 Cardigan Road is now sold.
Check out available communities below.