

































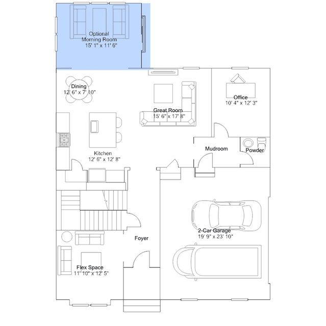
This two-story home features a spacious unfinished basement with endless possibilities. On the first floor is a flex room for versatile needs, followed by an open-concept main living area with a convenient home office tucked to the side. The top floor hosts three secondary bedrooms, one of which enjoys a private full bathroom, along with the lavish owners suite complete with a spa-inspired bathroom.
Stay informed with Livabl updates on new community details and available inventory.