















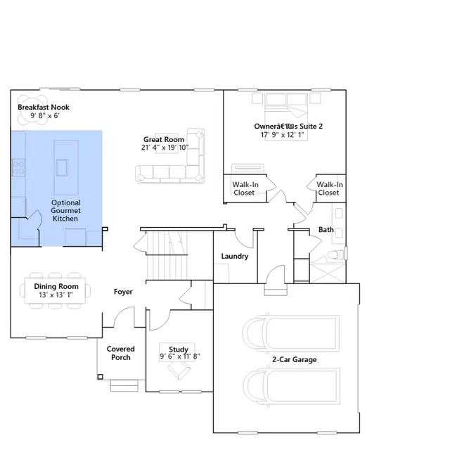
This expansive two-story estate home boasts dual owners suites with one on each level. Framing the foyer are a formal dining room and convenient study for versatile needs. Down the hall is an open layout shared among a grand two-story Great Room, kitchen and breakfast nook. Occupying the top floor are two spacious bedrooms with direct access to a shared bathroom. A two-car side-entry garage and unfinished basement complete this home.
Stay informed with Livabl updates on new community details and available inventory.