






















































































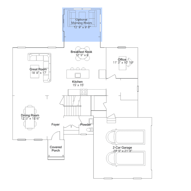
The first level of this two-story estate-style home features a double-height foyer, formal dining room, a convenient home office with a home management center and an open main living area. The second level is host to a laundry room plus all four bedrooms, including a large owners suite with an en-suite bathroom. A two-car side-entry garage and large unfinished basement complete this home and provide plenty of storage.
Stay informed with Livabl updates on new community details and available inventory.