













































































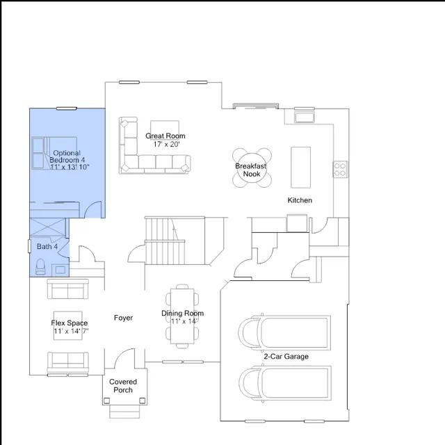
This expansive two-story home is designed for entertaining and features an unfinished basement ready to be transformed. On the first floor is a formal dining room and living room near the foyer, while at the back is a spacious open layout shared among the double-height family room, kitchen and breakfast room. The second level is occupied by a loft for shared living and all four bedrooms, each boasting direct access to an attached bathroom. In a privately situated corner, the luxurious owners suite showcases a versatile retreat. A two-car garage provides ample storage room.
Stay informed with Livabl updates on new community details and available inventory.