
















































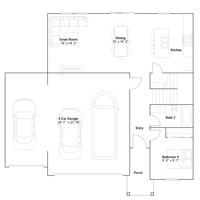
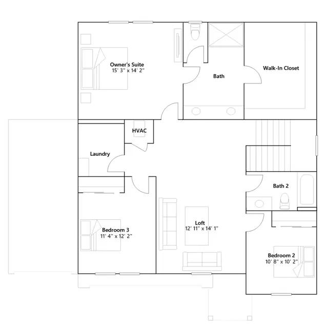
This new two-story home boasts a modern and spacious layout. A secondary bedroom and full bathroom are located off the entry, leading to an open-concept floorplan that blends the kitchen, dining and living areas to maximize interior space. On the second floor, three additional bedrooms surround a spacious and flexible loft, including the luxe owners suite with a private bathroom and walk-in closet.
Stay informed with Livabl updates on new community details and available inventory.