



















































































Get additional information including price lists and floor plans.
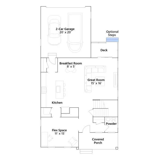
This spacious two-story home includes a beautifully finished basement, adding even more flexible living space to suit versatile needs. The main level showcases an open-concept design that seamlessly connects the kitchen, dining and living areas, along with a deck for easy indoor-outdoor activities. A flex space near the front of the home offers a quiet space for an office or study. Upstairs are all four bedrooms, including a luxurious owners suite complete with a private bathroom and walk-in closet.
Stay informed with Livabl updates on new community details and available inventory.