






















































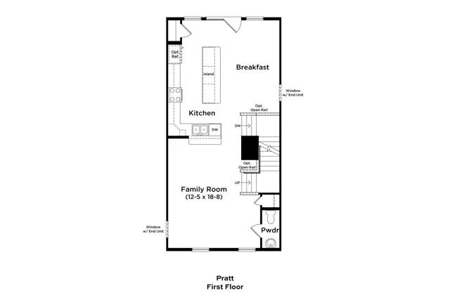
Welcome to the Pratt, a luxury townhome designed with a focus on functionality. Enter the home through a weather-protected 2-car garage or the main entryway, each leading into the lower level recreation room. This space can be used as a secondary family room or converted into an enclosed study or bedroom with a full bathroom. Make your way upstairs to the second level where you will discover a sunlit family room and open-concept kitchen offering an optional sliding glass door and rear deck. Enjoy a generously sized kitchen island and breakfast area, the perfect place for family and friends to gather! To maximize your cooking and preparation space, consider an optional gourmet kitchen upgrade. When it's time to relax and unwind, retreat to the third level where you will find a private owner's suite complete with an expansive walk-in closet, dual sink vanit...
Stay informed with Livabl updates on new community details and available inventory.