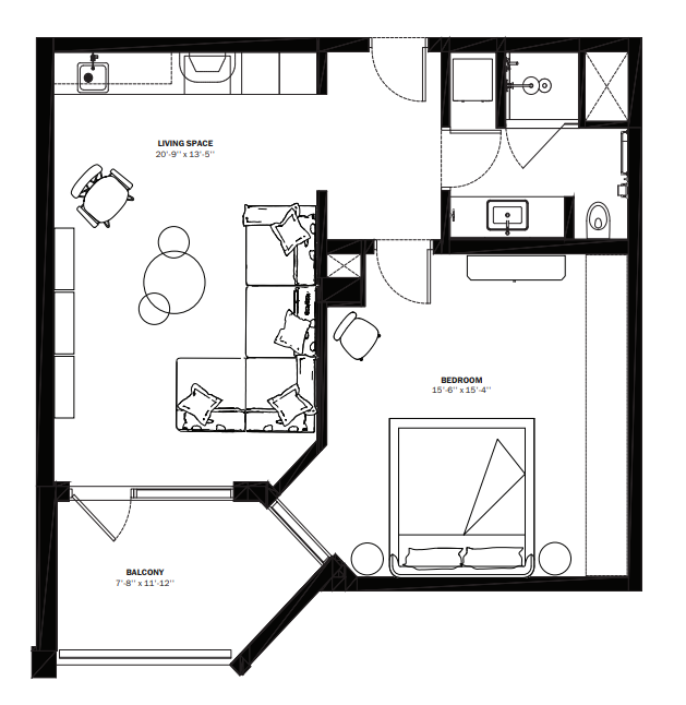
316
The Ritz-Carlton Residences
Nautilus, Miami Beach
1721
River District 14
Civic Center, Miami
1707
Mr. C Residences
Grove Center, Miami
207
1501
1407
608
Merrick Manor
Village of Merrick Park, Coral Gables
311
A Miami condo is selling million dollar t-shirts that come with a “free” Diesel-branded apartment
Touted as “the most expensive t-shirts ever,” the collection of floorplan-embossed garments includes designs like F1-L6, made from 100 percent pure cotton, which retails for $1,599,000.