hero-image-0
hero-image-1
hero-image-2
hero-image-3

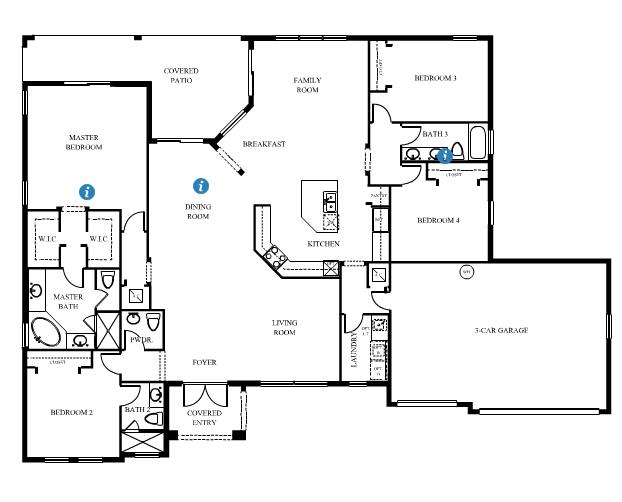
Ironwood Plan

By

D.R. Horton

   |   

Bonita Isles

Bonita Isles
Sold
Sold
4
3
1
From 2,705
unit-banner-imageunit-banner-imageunit-banner-image
Ironwood Plan details
Ironwood Plan is now sold.
Check out available nearby plans below.