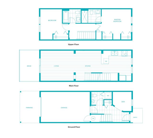
Boardwalk - Ocean Row
Tsawwassen Indian Reserve, Metro Vancouver
Boardwalk
Skye at Holly Park
East Ladner, Delta
Tsawwassen Landing
Southlands Tsawwassen
Boundary Beach, Delta
4876-4938 57 Street Townhomes
Ladner, Delta
The Madison at Hunter Road
Beach Grove, Delta
Westhampton at Hampton Cove