New Homes for Sale
Articles
Professionals
Log in
Sign up
Photos 3
Videos 0
Map
Interactive floor plan 0
Virtual 0
24 Pine Tree Drive
By
Toll Brothers
|
Regency at Emerald Pines
Community
Get updates
Save
Request info
Request info
Community
Request info
Get updates
Save
Request info
Regency at Emerald Pines
Get updates
Request info
Sold
Sold
3
4
4,114
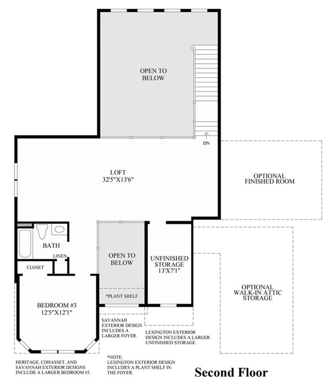
24 Pine Tree Drive details
Address:
Methuen, MA 01844
Plan type:
Detached Two+ Story
Beds:
3
Full baths:
4
SqFt:
4,114
Ownership:
Condominium
Interior size:
4,114 SqFt
Lot pricing included:
Yes
24 Pine Tree Drive is now sold.