



































Images coming soon
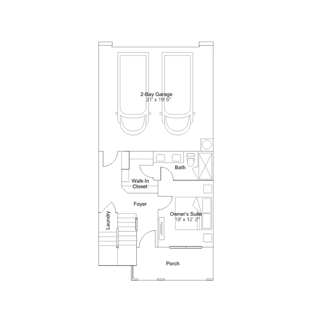
This new two-story townhome is ready for seamless entertaining with an inviting open floorplan that features access to a covered balcony on the second floor. Two secondary bedrooms are tucked away to the back of the home. The owner’s suite boasts an isolated location on the first floor away from the main living area, offering access to an en-suite bathroom and walk-in closet. Source: Lennar Homes
Stay informed with Livabl updates on new community details and available inventory.