







































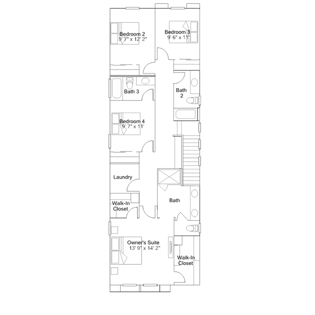
The first floor of this new two-story home is host to an inviting open floorplan that combines the kitchen with the living and dining areas. Four bedrooms can be found upstairs, including the owners suite, complete with an en-suite bathroom, dual walk-in closets and private balcony access.
Stay informed with Livabl updates on new community details and available inventory.