






































































Get additional information including price lists and floor plans.
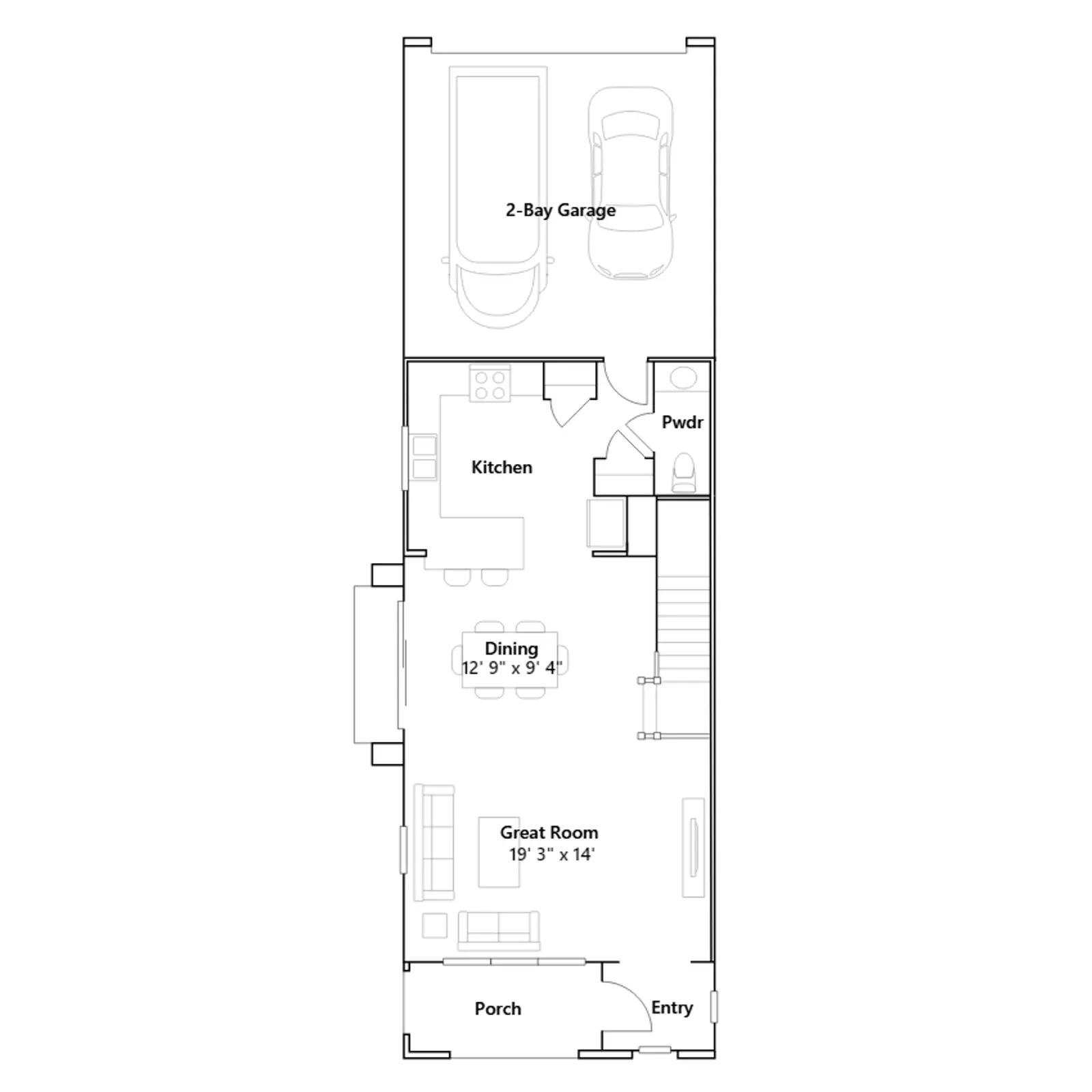
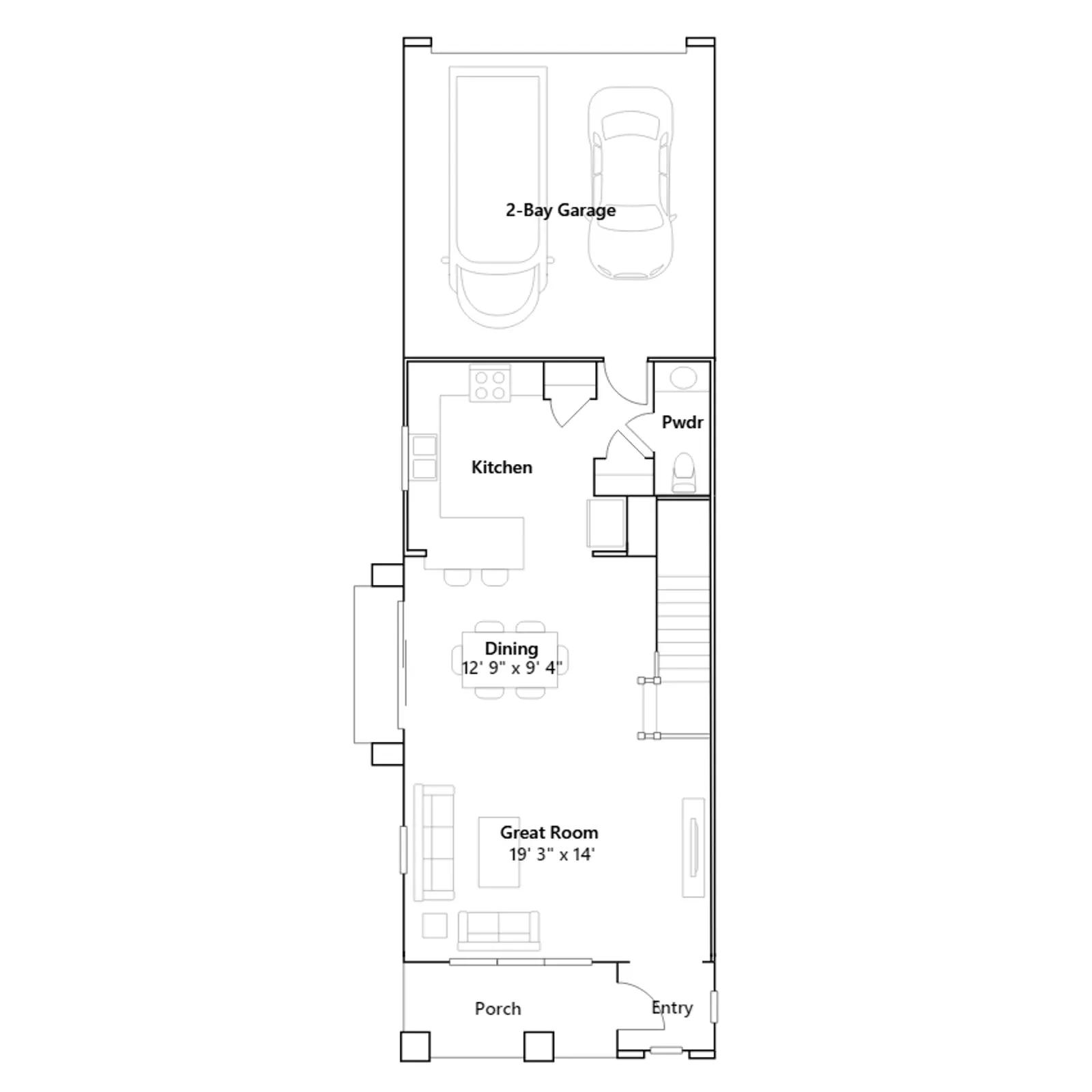
The first floor of this two-story home shares an open layout between the kitchen, dining area and Great Room for easy entertaining, along with convenient access to a powder room. Upstairs are two secondary bedrooms, ideal for household members and overnight guests, as well as a luxe owner's suite, comprised of an en-suite bathroom and walk-in closet.
Stay informed with Livabl updates on new community details and available inventory.