



















































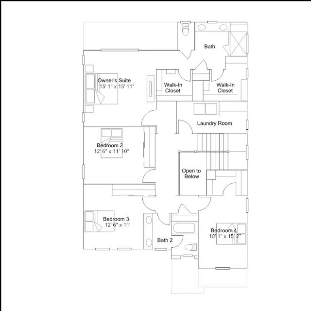
The first floor of this new two-story home is host to a modern open floorplan that combines the kitchen with the living and dining areas, with a covered patio offering enhanced outdoor living. A bedroom and full bathroom can be found near the entry. Upstairs, there are four additional bedrooms, including the luxe owners suite, featuring dual walk-in closets and an en-suite bathroom.
Stay informed with Livabl updates on new community details and available inventory.