








































Get additional information including price lists and floor plans.
Images coming soon
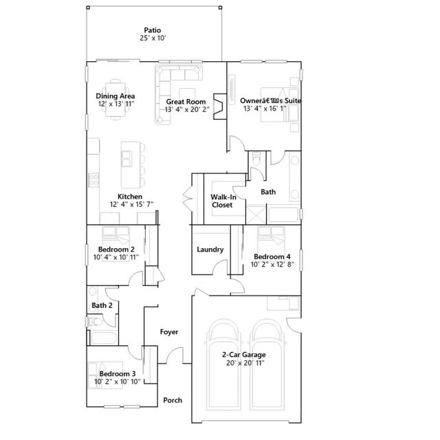
This single-story home provides the convenience of having everything you need on one level. In the heart of the home is an open-concept kitchen with island, Great Room and dining room that effortlessly leads to a porch. Three secondary bedrooms are located toward the entry, while the spacious owner's suite includes a walk-in closet and spa-inspired bathroom in a private back corner.
Stay informed with Livabl updates on new community details and available inventory.