


Images coming soon
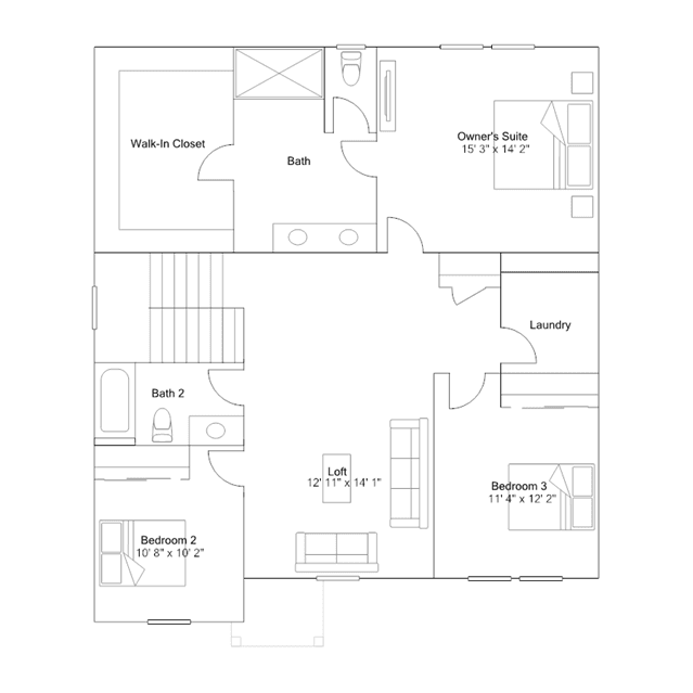
A spacious two-story home with a fantastic layout, featuring a versatile bedroom near the entry and an open concept floorplan consisting of a modern kitchen, Great Room and dining area. Upstairs are three additional bedrooms, including the luxe owners suite, which includes a spa-inspired bathroom and generous walk-in closet. A loft provides convenient shared living on the top level, the perfect place for an additional living area or study.