













































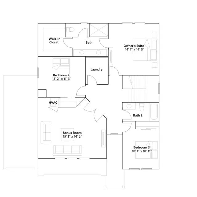
This new two-story home features a two-car garage and convenient bedroom on the first floor, along with an open-concept floorplan that blends the kitchen, living and dining areas to maximize interior space. On the second floor, double doors open to a spacious and flexible bonus room, easily accessible from three upstairs bedrooms, including the luxurious owners suite with a full-sized bathroom and walk-in closet.
Stay informed with Livabl updates on new community details and available inventory.