


















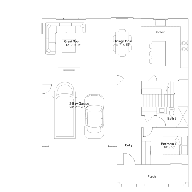
An open-concept design allows for effortless transition between the Great Room, dining room and kitchen on the first level of this two-story home, while a bedroom off the entry is ideal for overnight guests or a home office. A versatile loft is surrounded by three more bedrooms on the second floor, including the luxe owners suite featuring an en-suite bathroom and walk-in closet.