

























































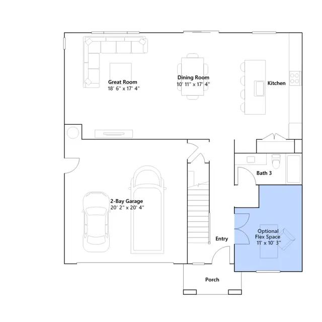
This new two-story home is ready for modern lifestyles. On the first floor, a spacious and flexible open-concept layout combines the kitchen, living and dining areas, with a convenient bedroom located at the front of the home. On the second floor, two bedrooms and a luxurious owners suite surround a versatile and inviting loft space, ideal for entertaining and shared living.
Stay informed with Livabl updates on new community details and available inventory.