




















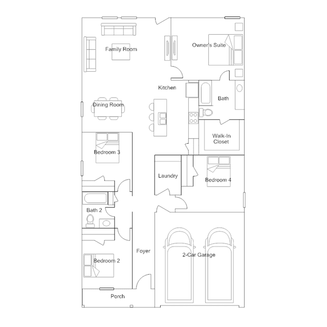
This single-story home offers the convenience of having everything on one level. It includes a well-equipped owners suite in the back of the home with a private full bathroom and walk-in closet. Beside it is the open concept living area, which includes a kitchen, dining room and family room. The three additional bedrooms share a bathroom in the hall.
Stay informed with Livabl updates on new community details and available inventory.