
















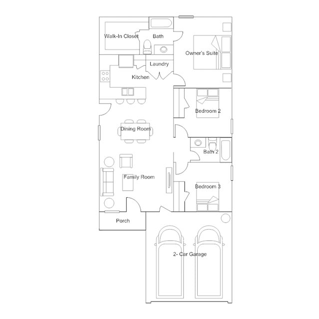
This single-story home has a simple layout that is perfect for growing families. Three bedrooms are lined up in a neat row, including the owners suite at the back of the home. The open living area provides a place to relax and spend time together with a family room, dining area and kitchen.