hero-image-0
hero-image-1

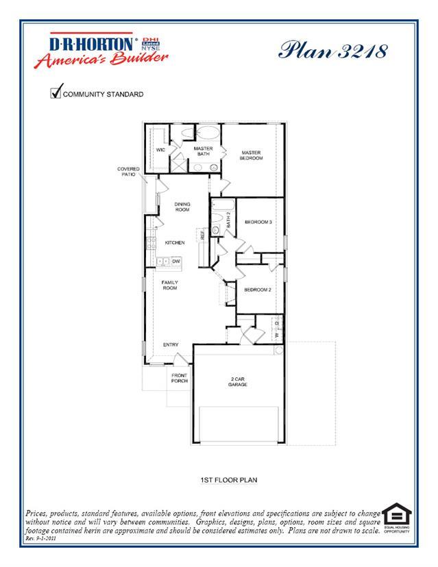
3218 Sapphire Plan

Fossil Series at Highlands of ...
Sold
Sold
3
2
From 1,406
unit-banner-imageunit-banner-imageunit-banner-image
3218 Sapphire Plan details
3218 Sapphire Plan is now sold.
Check out available nearby plans below.