


Get additional information including price lists and floor plans.



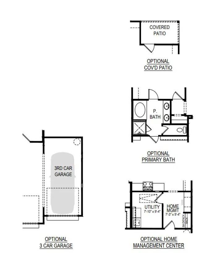
Meet the Harrison, a three bedroom, two bathroom home blending cozy living with modern touches. A spacious primary bedroom with a walk-in closet and an en-suite bath is complemented by two secondary bedrooms, perfect for guests. The large family room opens to a contemporary kitchen, ideal for both relaxed weekends and casual entertaining. Source: Trophy Signature Homes
Stay informed with Livabl updates on new community details and available inventory.