New Homes for Sale
Articles
Professionals
Log in
Sign up
Photos 19
Videos 0
Map
Interactive floor plan 0
Virtual 0
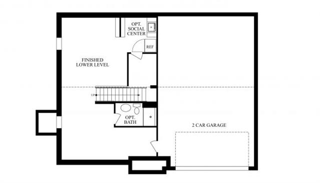
Wilson Plan
By
Maronda Homes
   |  Â
Princeton Place
Community
Available homes
Get updates
Save
Request info
Request info
Community
Available homes
Request info
Get updates
Save
Request info
Princeton Place
Get updates
Request info
Sold
Sold
4
2
1
From 2,850
Wilson Plan details
Address:
Â
North Fayette Township, PA 15057
Plan type:
Â
Detached Two+ Story
Beds:
Â
4
Full baths:
Â
2
Half baths:
Â
1
SqFt:
Â
From 2,850
Ownership:
Â
Fee simple
Interior size:
Â
From 2,850 SqFt
Lot pricing included:
Â
Yes
Wilson Plan is now sold.
Check out available nearby plans below.
Similar 4 bedroom plans nearby
view all
Truman
Amalfi Ridge
From $588,490
Oakdale
Hoover
Amalfi Ridge
From $568,485
Oakdale
Tucson
Amalfi Ridge
From $501,485
Oakdale
Carlisle
The Abbey
From $474,885
Imperial
Carlisle
Amalfi Ridge
From $539,885
Oakdale
Waterloo
The Abbey
From $394,885
Imperial
Boston
Amalfi Ridge
From $465,885
Oakdale
Cleveland
Amalfi Ridge
From $579,890
Oakdale