The Abbey
Imperial
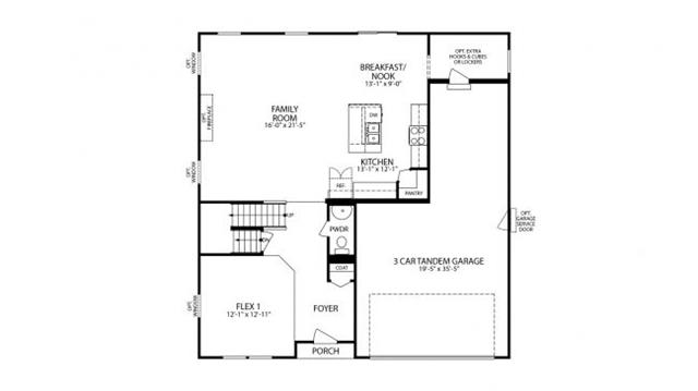
Amalfi Ridge
Oakdale
Fayette Farms Ranch Homes
Noblestown
Stonegate
McDonald
Creekside Meadows
Blackstone Single-Family Homes