





























Get additional information including price lists and floor plans.
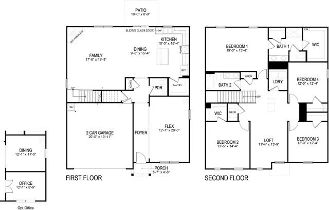
The Hanover floor plan, which is available at Best Farms in Maryville, is one of D.R. Horton's most popular floor plans. The foyer opens into an open-concept main level, which features a spacious kitchen with a pantry and an island with countertop seating that overlooks a dining and living area. Additionally, the downstairs features a half bathroom and a flex room, which could be used as a formal dining space or an office. Upstairs, there is a loft that provides extra space for work and play. The primary bedroom boasts a private bathroom and walk-in closet, while three additional bedrooms share a comfortable bathroom. For convenience, there is also a laundry room upstairs. This floorplan is designed to suit any stage of life. D.R. Horton is an Equal Housing Opportunity Builder. Home and community information, including pricing, included features, terms, avai...
Stay informed with Livabl updates on new community details and available inventory.