

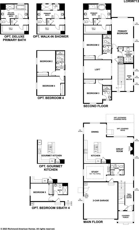
The Lori floor plan offers inviting spaces to entertain, including a great room with cozy fireplace and a kitchen with a convenient center island. You'll also appreciate a powder room and an open dining room. This home will be built with a study or extra bedroom. Upstairs, discover a lavish primary suite with an attached bath and oversized walk-in closet. The second floor will be built with either a loft or an extra bedroom. A covered patio and a gourmet kitchen will be included on select homesites.