






































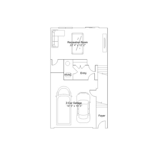
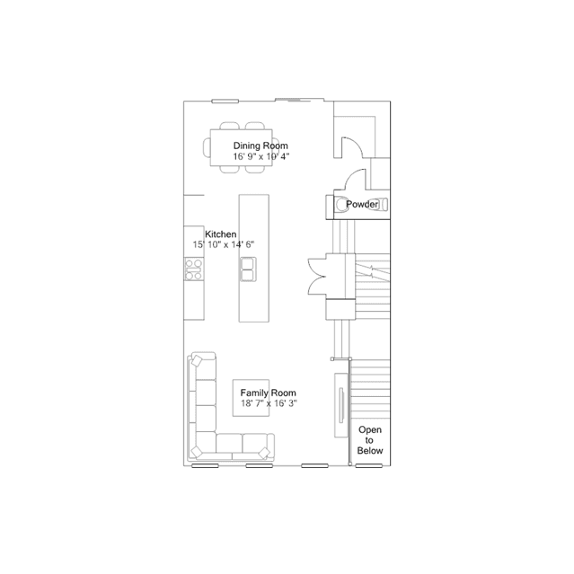
This three-story townhome is the largest plan in this collection. The first floor features a two-car garage and a spacious flex space with a convenient back entrance, while upstairs is an open concept family room, kitchen and dining room, with an optional deck for outdoor living. All three bedrooms are situated on the third floor to provide a restful retreat. Perfect for entertaining is an optional fourth-floor rooftop deck to host gatherings and recreational activities.