









































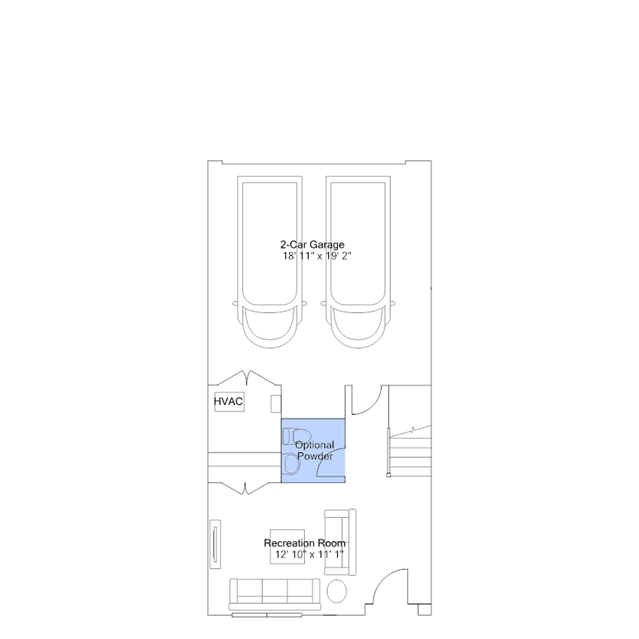
This three-story townhome features a two-car garage and a first-floor recreation room ready to be transformed. On the second level is an open layout in the spacious kitchen, dining room, living room and Great Room, with an optional deck for outdoor living. The top floor features all three bedrooms. An optional fourth floor is available with the choice to add a loft or a fifth bedroom.