



























































Images coming soon
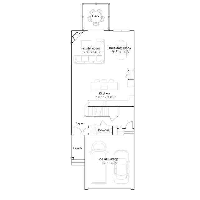
This two-story home has a smart layout with everything homeowners need to be comfortable. The front door leads to the spacious kitchen which opens to the breakfast nook, family room and the deck for outdoor living. Upstairs is a cozy loft surrounded by all three bedrooms, including the owners suite which features a spa-like bathroom. An unfinished basement and two-car garage provide flexible uses.