hero-image-0

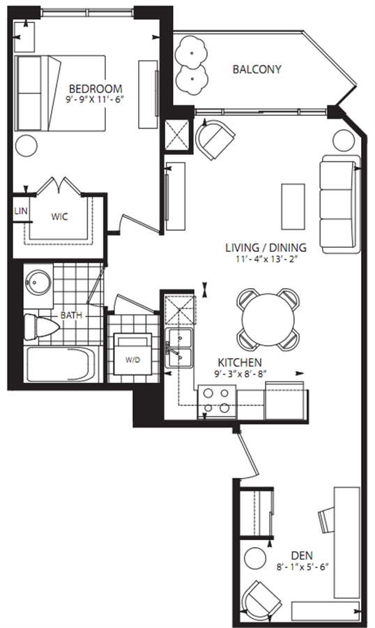
1BD-D Plan

The Essential Condos
Sold
Sold
1
1
1
From 677
unit-banner-imageunit-banner-imageunit-banner-image
1BD-D Plan details
1BD-D Plan is now sold.
Check out available nearby plans below.