hero-image-0

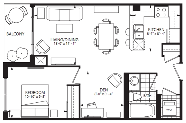
1BD-C Plan

The Essential Condos
Sold
Sold
1
1
1
From 646
unit-banner-imageunit-banner-imageunit-banner-image
1BD-C Plan details
1BD-C Plan is now sold.
Check out available nearby plans below.