hero-image-0

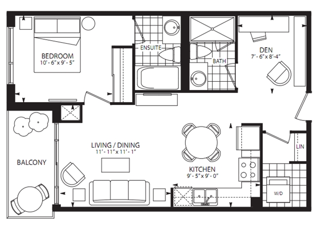
1BD-B Plan

The Essential Condos
Sold
Sold
1
2
1
From 645
unit-banner-imageunit-banner-imageunit-banner-image
1BD-B Plan details
1BD-B Plan is now sold.
Check out available nearby plans below.