hero-image-0

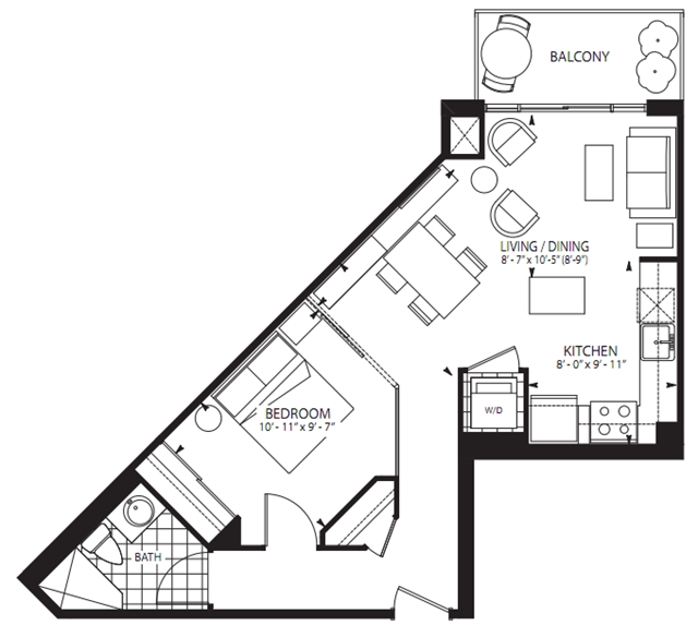
1B-D Plan

The Essential Condos
Sold
Sold
1
1
From 588
unit-banner-imageunit-banner-imageunit-banner-image
1B-D Plan details
1B-D Plan is now sold.
Check out available nearby plans below.