The Indigo
Gallery Towers
Unionville, Markham
The Orchid
The Coral
The Hunter
The Fuchsia
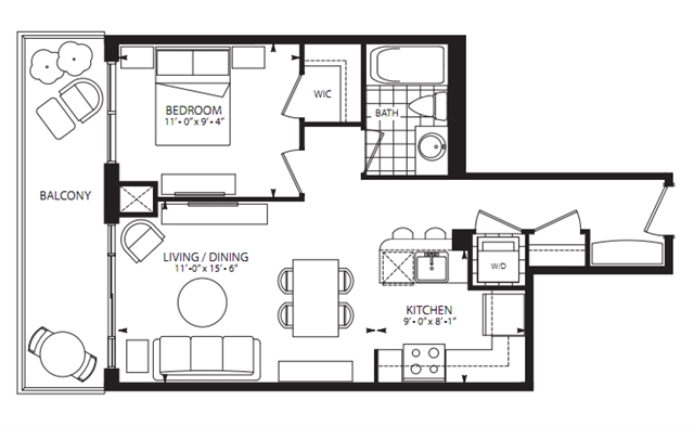
S304
EverHome Markham - North and South Buildings
Berczy, Markham
The Navy
E507