Sheffield
Richmond Hill Town Manors
South Richvale, Richmond Hill
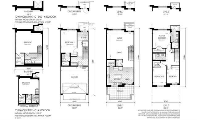
Leblanc C
Victoria Grand by Aspen Ridge - Townhomes
Rural Markham, Markham
Ambrose C
George - Elev. B
Victoria Grand by CountryWide - Townhomes
Richard - Elev. A
Ambrose D
Rattray C
Shelton C