hero-image-0

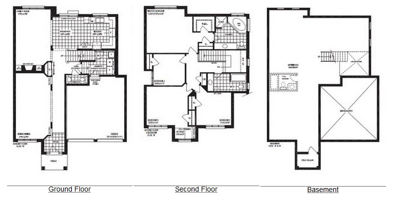
Citrine Elevation B Plan

Greensborough by Fieldgate Hom...
Sold
Sold
4
From 2,304
unit-banner-imageunit-banner-imageunit-banner-image
Citrine Elevation B Plan details
Citrine Elevation B Plan is now sold.
Check out available nearby plans below.