hero-image-0
Eden Park Towers Phase 2
Sold
Sold
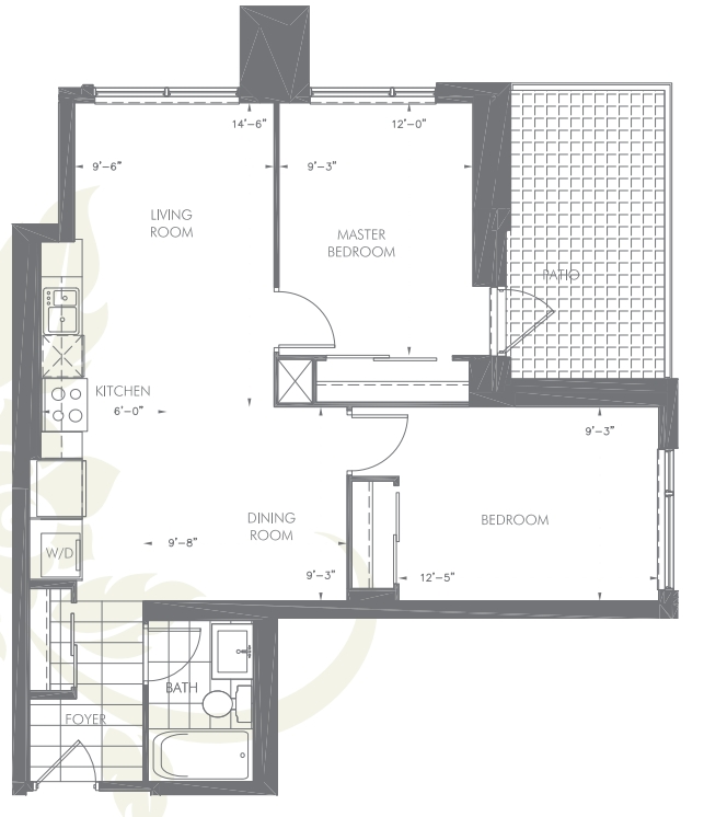
2
From 748
unit-banner-imageunit-banner-imageunit-banner-image
2Q Plan details
2Q Plan is now sold.
Check out available nearby plans below.