hero-image-0
Eden Park Towers Phase 2
Sold
Sold
1
From 642
unit-banner-imageunit-banner-imageunit-banner-image
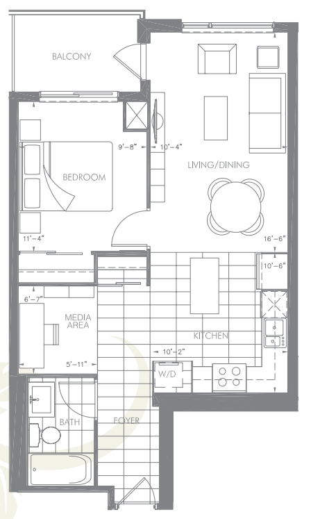
1A1 Plan details
1A1 Plan is now sold.
Check out available nearby plans below.