hero-image-0
hero-image-1
hero-image-2

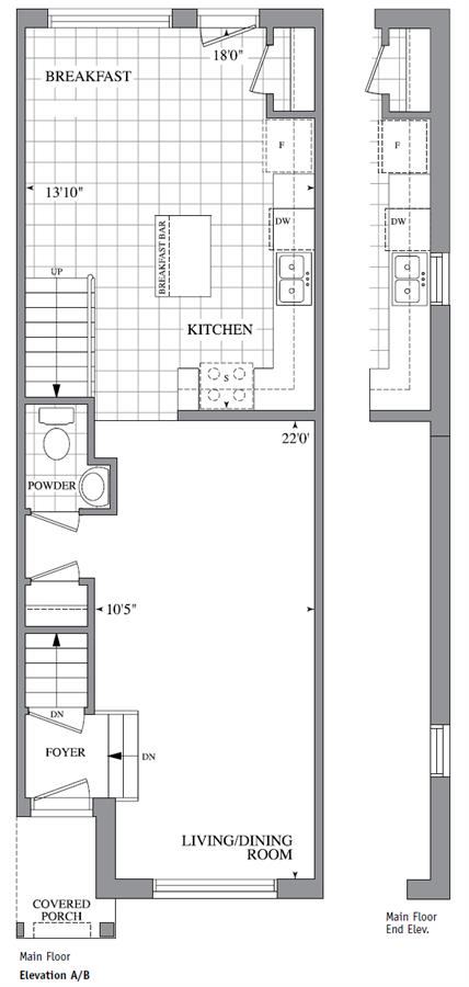
The Rouge Spring Plan

Cornell Rouge Phase 4
Sold
Sold
3
3
1
From 1,843
unit-banner-imageunit-banner-imageunit-banner-image
The Rouge Spring Plan details
The Rouge Spring Plan is now sold.
Check out available nearby plans below.