hero-image-0
hero-image-1

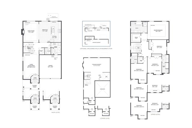
Manhattan 02 Elev. 3 Plan

Cityside - Phase 1
Sold
Sold
4
3
1
From 2,986
unit-banner-imageunit-banner-imageunit-banner-image
Manhattan 02 Elev. 3 Plan details
Manhattan 02 Elev. 3 Plan is now sold.
Check out available nearby plans below.