hero-image-0

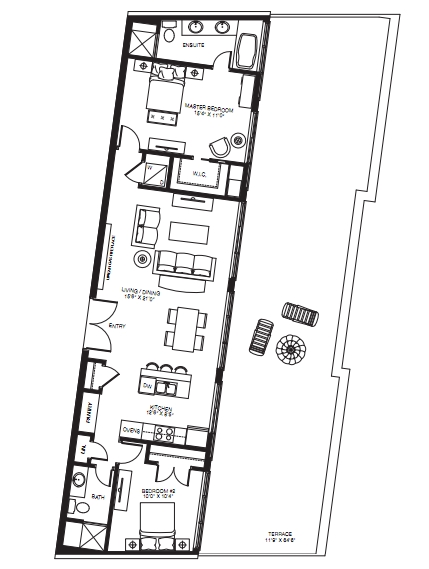
Unit 2Z Plan

By

Sierra

   |   

68 Main Street

68 Main Street
Sold
Sold
2
2
From 1,101
unit-banner-imageunit-banner-imageunit-banner-image
Unit 2Z Plan details
Unit 2Z Plan is now sold.
Check out available nearby plans below.