

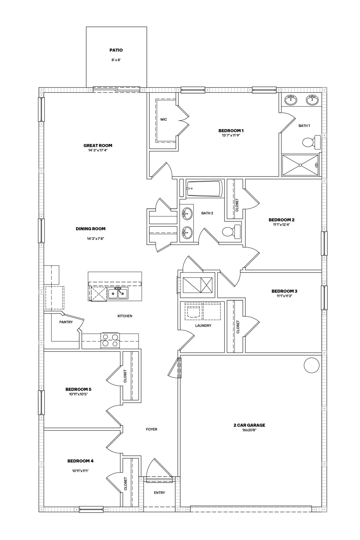
The Dundee is a spacious and versatile single-story home featuring 5 bedrooms, 2 bathrooms, and 1,708 sq. ft. of thoughtfully-designed living space available in Sunset Hills in Summerfield, Florida. With a 2-car garage and an open-concept layout, this plan offers the perfect balance of functionality, comfort, and modern style. The centrally located kitchen is a true highlight, showcasing sleek quartz countertops, a large center island, walk-in pantry, and stainless-steel appliances that is ideal for everything, from weeknight meals to weekend entertaining. The kitchen flows seamlessly into the dining and living areas overlooking the outdoor patio, creating an open and inviting atmosphere for gathering with family and friends. The Owner's Suite is tucked away in the rear of the home for added privacy and includes a spacious closet and an ensuite bathroom...
Stay informed with Livabl updates on new community details and available inventory.