


























Images coming soon
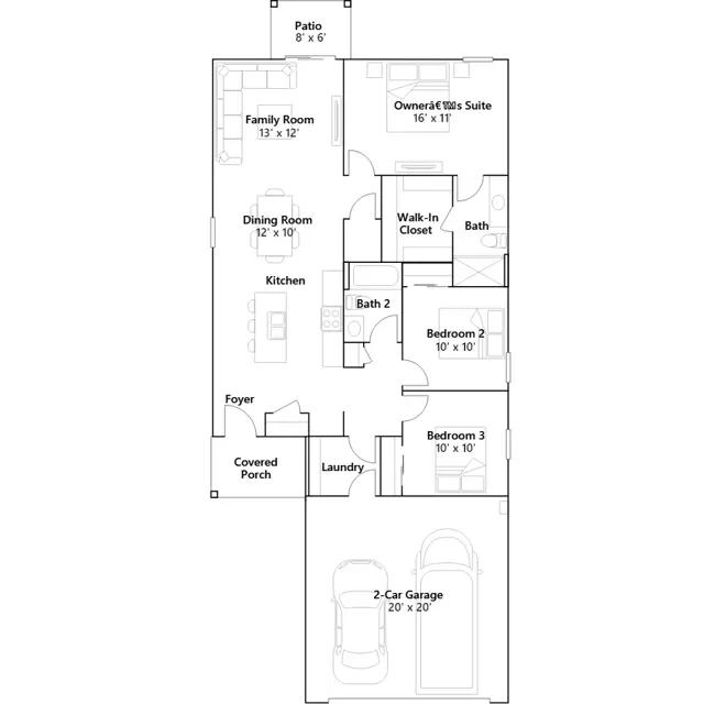
This spacious single-level home offers plenty of room to live and grow. A flexible open-concept floorplan combines the kitchen, living and dining areas, with a nearby patio offering seamless outdoor entertainment and recreation. Three bedrooms are tucked away to the side of the home, including the owners suite in a private rear corner, complete with an en-suite bathroom and roomy walk-in closet.
Stay informed with Livabl updates on new community details and available inventory.