hero-image-0
Village Green Townhomes
Sold
Sold
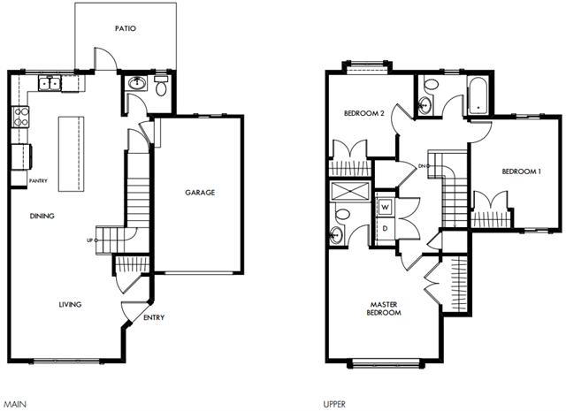
3
2
1
From 1,291
unit-banner-imageunit-banner-imageunit-banner-image
A Plan details
A Plan is now sold.
Check out available nearby plans below.